Galerie - Entwerfen
Galerie studentischer Arbeiten im Lehrgebiet Entwerfen
An dieser Stelle zeigen wir studentische Arbeiten, die im Lehrgebiet Entwerfen entstanden sind. Dazu gehören Stegreifentwürfe, der 3. Hauptentwurf, der 5. Hauptentwurf als Vertiefungsentwurf sowie die Diplomarbeit.
..............................................................................................................................................................
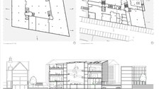
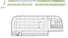
SS 2022 - Highrise DD
Entwurfsthema : Ein nachhaltiges Hochhaus für Dresden
3. Hauptentwurf / 5.Vertiefungsentwurf / Diplom, mit Studienarbeiten von :
Juena Jazxhi u. Susanne Albert, Yannik Heißner, Christian Schott

© EK-ll

© EK-ll

© EK-ll
..............................................................................................................................................................
WS 2021/22 - Ressource Rüdersdorf - Neu aufgemischt
Bearbeitung im Rahmen des AIV Schinkel-Wettbewerbs 2022 als
3. Hauptentwurf / 5.Vertiefungsentwurf / Diplom, mit Studienarbeiten von :
Larena Dix u. Lea Grahmann, Xiaoyu Gu u. Ruiqi Wang, Alena Seuß u. Sebastian Stein, Michael Jemeljanow u. Thomas Speck, Jonathan Theis u. Yanjun Yi, Alexander Unfried

© EK-II

© EK-II

© EK-II

© EK-II

© EK-II

© EK-II
..............................................................................................................................................................
SS 2021 - Kunst- und Kulturquartier Chemnitz
Ein Kunst- und Kulturzentrum für die Gegenwart
3. Hauptentwurf : Anika Hertwig u. Lisa Probst

© EK-II

© EK-II

© EK-II

© EK-II

© EK-II

© EK-II

© EK-II

© EK-II

© EK-II

© EK-II

© EK-II

© EK-II

© EK-II

© EK-II

© EK-II

© EK-II
Diplomarbeit : Mengping Huang

© EK-II

© EK-II

© EK-II

© EK-II

© EK-II

© EK-II

© EK-II

© EK-II

© EK-II

© EK-II

© EK-II

© EK-II

© EK-II

© EK-II

© EK-II

© EK-II
..............................................................................................................................................................
SS 2021 - Stegreif-Entwurf: Café Stresemannplatz
ReUse for Zero Waste Architecture
Studienarbeiten: Kilian Beutin, Anna Kaminski, Elisa Kühne, Luise Schuhmann, Ann-Christin Zander
Link zum News-Beitrag

© Luise Schuhmann

© Anna Kaminski

© Kilian Beutin

© Kilian Beutin

© Elisa Kühne

© Ann-Christin Zander
..............................................................................................................................................................
WS 2020/21 - Strukturwandel Weißwasser - Neubau des BAFA-Campus
Der studentische Wettbewerb am Lehrstuhl Entwerfen und Konstruieren II, der in Kooperation mit dem Bundesamt für Wirtschaft und Ausfuhrkontrolle (BAFA) durchgeführt wurde, ist entschieden.
Im Rahmen des studentischen Wettbewerbs „Strukturwandel Weißwasser - Innovative Lebens- und Arbeitswelten“ entschied die Jury am 8. April 2021 über Preise und Ankäufe. Dem Gremium der Fachsparte Hochbau gehörten an : Torsten Safarik - Präsident des BAFA, Dr. Andrea Vater - Vizepräsidentin des BAFA, Dr. Ina Bartmann - Leiterin der BAFA-Außenstelle Weißwasser, Randolph Nauert - Sachgebietsleiter Bundesbau des SIB, Matthias Horst – Freier Architekt in Dresden sowie Fabian Zens und Michael Vaerst von der Professur für Entwerfen und Konstruieren II der TU Dresden.
Wir gratulieren Paula Noack, die mit Ihrer Diplomarbeit den 1. Preis erhielt.

Paula Noack : Gebäudemodell des Entwurfs für den BAFA-Campus
Mit ihrer Diplomarbeit verfolgte Paula Noack konsequent den konzeptionellen Ansatz, den Entwurf für den BAFA-Campus mit geschichtlichen Konnotationen ganz unmittelbar zu verorten und mit dem Standort in Weißwasser zu verknüpfen.

Wilhelm Wagenfeld : Kubus-Glasgeschirr
Dabei lieferte das in Weißwasser produzierte Kubus-Glasgeschirr - 1938/39 von Wilhelm Wagenfeld für die Vereinigten Lausitzer Glaswerke entworfen - eine analoge Metapher, die in allen Stufen vom Konzeptansatz bis zur Ausarbeitung durchgehalten und thematisiert wurde.
Um ein lichtes Atrium ringt sich eine abwechslungsreiche Büro-Struktur, die es vermag, eine für die Nutzer kommunikative Atmosphäre und ein Gemeinschaftsgefühl
zu schaffen. Durch die räumlich offene und aufgelockerte Büro-Organisationsform nach dem Business-Club-Modell entsteht dabei ein hohes Maß an funktionaler Flexibilität. Funktionale, gestalterische und konstruktive Aspekte verbinden sich bei diesem Entwurf zu einer großen Einheit, die ein kompaktes und lichtdurchflutetes Volumen ausbildet, bei dem die Minimierung der Gebäudehüllfläche von Beginn an programmatisch war. Auf dieser Grundlage können auch viele Aspekte der hohen Nachhaltigkeitsanforderungen erfüllt werden.
Die konsequente Umsetzung des Themas konnte die Juroren begeistern. Dabei besticht die Arbeit durch ihre Klarheit und die hohe Qualität der stringenten Durcharbeitung.

Paula Noack : Ausschnitt aus dem Gesamtmodell für den BAFA-Campus mit Gelsdorfhütte
Die Diplomarbeit von Sabrina Gatzlaff sowie die Teamarbeit von Richard Schmiedchen und Phil-Gordan Zameit erhielten jeweils einen 2. Preis.
Sabrina Gatzlaff verfolgt mit Ihrer Arbeit eine klare Ableitung aus den örtlichen Spuren und entwickelt anhand der vorhandenen Baufluchten eine Baukörperstruktur aus zwei Gebäuderiegeln, die mit einer Glashalle verbunden sind. Im Zuge der Erschließung entsteht so eine repräsentative Adressbildung mit klarer Zonierung und guter Einbindung in das städtebauliche Quartier. Dabei weist die Konzeptionierung der Gebäuderiegel als Dreibund-Anlage ein hohes Maß an funktionaler Flexibilität auf. Die schlüssige Verarbeitung der konstruktiven und technischen Belange bis zu ökologischen Aspekten führen zu einer rundum gelungenen Arbeit, die die Jury mit dem 2. Preis würdigt.

Sabrina Gatzlaff : Lageplan mit BAFA-Campus und Umfeld

Teamarbeit Richard Schmiedchen und Phil-Gordan Zameit : Gesamtmodell mit Umfeld
Die durch Richard Schmiedchen und Phil-Gordan Zameit eingereichte Teamarbeit zum BAFA-Campus wurde durch die Jury insgesamt als stimmig und ansprechend eingeschätzt. Der Entwurf konnte besonders durch seine Einbettung in die bestehende städtebauliche Situation überzeugen. Baulich überzeugt der Entwurf durch die funktionale Trennung in zwei Gebäudeteile, die mit einer Glashalle verbunden sind. Dabei wird die klare Struktur der Gebäude sowie die sinnvolle Aufteilung der Funktionen zwischen den Gebäuden als weiterer positiver Punkt hervorgehoben. Das sehr detaillierte und gut durchdachte Nachhaltigkeitskonzept wird besonders gelobt.
Der konsequente konzeptionelle Ansatz der Arbeit von Lena Borck wurde von der Jury mit einem Ankauf gewürdigt. Die Setzung des Solitärs für den BAFA-Campus ist folgerichtig und nachvollziehbar sowie städtebaulich überzeugend. Schlüssig ist dann auch die offene Durchwegung des Hauses, die die gewünschte Verzahnung mit der Stadt gewährleistet. Innere Gliederung, Funktionsverteilung und Erschließung sind gut und nachvollziehbar strukturiert. Spannende Raumfolgen für die unterschiedlichen Bürozonen und -qualitäten sind ebenso zu erkennen, wie die sinnvolle Verteilung der Nebenzonen und Gemeinschaftsbereiche.

Lena Borck : Konzeptdarstellung, Ansicht und Schnittperspektive

Teamarbeit Nico Hilsky und Philipp Läsker : Gesamtmodell mit Umfeld
Nico Hilsky und Philipp Läsker verfolgen die Idee der Schaffung von verbindenden Ankerpunkten, wie BAFA-Campus – Ziegeleiteich – Jahnteich - Stadtraum, um die Quartiersräume städtebaulich miteinander zu verbinden. Der BAFA-Campus erscheint dabei als langgestreckter Baukörper, der sich in der Gesamt-Kubatur in zwei Gebäudekörper aufteilt, die mit einer gläsernen Halle verbunden sind. Die gute organische Innenstruktur mit zugehörigen Gebäudeöffnungen und Ausbildung der Büroflächen als fließende Zonen werden dabei gelobt. Auch dieses Projekt erhielt einen Ankauf.
Weitere Informationen zum Thema und zu den Inhalten erhalten Sie am Lehrstuhl, oder im Web unter: https://tu-dresden.de/bu/architektur/bauko2
Informationen zu den einzelnen Terminen :
Newsbeitrag zur Preisgerichtssitzung am 08.04.2021
Newsbeitrag zur Prämierung der Arbeiten am 17.06.2021
..............................................................................................................................................................
WS 20/21 - Stegreif-Entwurf: BZW Fassade
Des Hauses neue Kleider ...
Studienarbeiten: Kilian Beutin, Ann-Christin Zander, Mattis Bellen

© Mattis Bellen

© Ann-Christin Zander

© Kilian Beutin
..............................................................................................................................................................
WS 2019/20 - Elbebad Dresden
Kooperationsprojekt mit der Stadt Dresden / Wasserstraßen- u. Schifffahrtsamt Dresden
Diplomarbeit: Marie Koch

© EK-II

© EK-II

© EK-II

© EK-II

© EK-II

© EK-II

© EK-II

© EK-II

© EK-II

© EK-II
..............................................................................................................................................................
SS 2019 - Inkubator Dresden-Neustadt
Kooperationsprojekt mit der Volksbank Dresden-Bautzen e.G.
5. HE-Vertiefungsentwurf : Paula Noack

© EK-II

© EK-II

© EK-II

© EK-II

© EK-II

© EK-II

© EK-II

© EK-II
5. HE-Vertiefungsentwurf : Sandy Christmann

© EK-II

© EK-II

© EK-II

© EK-II

© EK-II

© EK-II

© EK-II

© EK-II

© EK-II
5. HE-Vertiefungsentwurf : Hanna Liewald

© EK-II

© EK-II

© EK-II

© EK-II

© EK-II

© EK-II

© EK-II
..............................................................................................................................................................
SS 2019 - New Dresden - Zeltpavillon für das Staatstheater Dresden
Kooperationsprojekt mit dem Dresdner Staatstheater und dem Künstler Raoul Walsh.
Die Umsetzung im M.1:1 erfolgte auf dem Dresdener Postplatz.

© EK-II

© EK-II

© EK-II

© EK-II

© EK-II

© EK-II

© EK-II

© EK-II

© EK-II

© MV
..............................................................................................................................................................
WS 2018/19 - DJH Sportjugendherberge Rostock
Kooperationsprojekt mit dem DJH Landesverband Mecklenburg-Vorpommern
5. HE-Vertiefungsentwurf : Michael Penseler

© EK-II

© EK-II

© EK-II

© EK-II

© EK-II

© EK-II

© EK-II

© EK-II