SoSe 21 I Dreieck Späthsfelde Berlin
Gartenstadt 4.0
urban_produktiv_grün_kooperativ_vernetzt
Berlin wächst mit großer Dynamik. Nach aktueller Prognose wird die Bevölkerung bis zum Jahr 2030 auf etwa 3,9 Mio Berliner*innen steigen. Vor diesem Hintergrund steigt der Druck, neue Wohn- und Gewerbestandorte in der Stadt zu entwickeln, Stadträume nutzungsstrukturell neu zu ordnen und bislang baulich weitgehend ungenutzte Flächenpotenziale zu erschließen. In Anbetracht der zunehmenden Flächenknappheit richtet sich der Blick dabei auch auf Bereiche außerhalb des S-Bahn-Rings, so beispielsweise auch auf das sogenannte „Dreieck Späthsfelde“ im Bezirk Treptow-Köpenick, das sich im Übergangsraum zwischen Innenstadtrandzone und dem stärker landschaftlich geprägten Stadtrandbereich befindet und dessen Entwicklung über ca. 150 Jahre entscheidend von den (namensgebenden) Späth’schen Baumschulen geprägt wurde. Heute ist die Produktion der Späth’schen Baumschulen, die um 1900 die größte Baumschule der Welt waren und im „Dreieck Späthsfelde“ noch heute über Flächen im Umfang von ca. 31 ha verfügen, weitgehend auf Anbauflächen in Königs Wusterhausen ausgelagert.
Übergeordnete Planungen des Landes Berlin sehen für Teile des „Dreiecks Späthsfelde“ schon seit längerem die Entwicklung von Gewerbeflächen vor. Aufgrund seiner Lage an der Bundesautobahn A 113 mit der Anschlussstelle Späthstraße sowie seiner Innenstadtnähe bieten sich insbesondere die im Westen und Nordwesten Späthfeldes gelegenen Flächen für eine gewerbliche Entwicklung an. Die Eröffnung des Flughafens BER stellt dabei eine weitere Chance für das Areal dar, da es unmittelbar an der Entwicklungsachse zwischen dem neuen Flughafen und der Innenstadt liegt.
Darüber hinaus wird seitens des Landes Berlin inzwischen auch ein Potenzial für eine Wohnbebauung im Südosten des „Dreiecks Späthsfelde“ gesehen. So wurde das Areal im Sommer letzten Jahres im Kontext des Senatsbeschlusses zum Stadtentwicklungsplan "Wohnen 2030" als Potenzialfläche für einen gemischten Wohn- und Gewerbestandort eingestuft und empfohlen, eine Entwicklung von Teilflächen im Bereich der Späthstraße für Wohnungsneubau zu prüfen.
Ungeachtet der vorgenannten Überlegungen scheiterte die Initiierung einer Entwicklung des Gebiets bislang am fehlenden Lückenschluss des übergeordneten Verkehrsnetzes zwischen der Bundesautobahn A 113, Anschlussstelle Späthstraße und der Minna-Todenhagen-Straße bzw. gleichnamiger Spreebrücke. Erschwert wird eine städtebauliche Neuordnung des Gebiets zudem durch die teilräumliche Betroffenheit von Kleingärten, deren Erhalt aktuell politisch ein größeres Gewicht beigemessen wird als einer baulichen Entwicklung.
Die Aufgabenstellung wurde in enger Zusammenarbeit mit dem Sonderreferat Wohnen der Berliner Senatsverwaltung für Stadtentwicklung und Wohnen formuliert. Wertvolle Unterstützung erhielten wir außerdem durch die Professur für Landschaftsbau, Prof. Irene Lohaus und Sören Meyer, und durch die Professur für Verkehrsplanung und Straßenverkehr, Caroline Koszowski, alle TU Dresden.
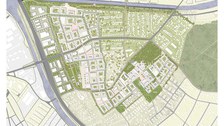
Ziel des Entwurfsprojektes war die Erarbeitung eines städtebaulichen Rahmens für die Entwicklung eines durchgrünten neuen Stadtquartiers mit Gewerbe- und Wohnnutzungen unter Beachtung der besonderen städtebaulichen, verkehrlichen und freiräumlichen Herausforderungen. Das Quartier sollte in einer Größe und Dichte (mindestens 2.000 Wohneinheiten) gedacht werden, die eine Grundausstattung mit sozialen Infrastruktureinrichtungen wie Kitas und einer Grundschule sowie Nahversorgung trägt.
In der ersten Phase wurden das Planungsareal und die angrenzenden Quartiere intensiv in Bezug auf geschichtliche Entwicklung, Struktur, Nutzung, Freiraum, Gebäudetypologie und Verkehr analysiert und assoziativ interpretiert. Danach sollten Szenarien für Produktions-, Wohn- und Mobilitätsformen sowie neue Freiraumtypen im Kontext der "Gartenstadt 4.0" formuliert werden. Diese wurden über die Untersuchung von räumlich-strukturellen Varianten zu tragfähigen städtebaulichen und freiraumplanerischen Konzepten weiterentwickelt. Nach der Diskussion der Konzepte entstanden Rahmenpläne, die eine prozesshafte Umsetzung und auch Anpassung erlauben. Unterschiedliche Teilbereiche wurden vertieft und jeweils räumlich und funktional in einem größeren Maßstab bis in die Gebäudeebene (Typologie, Nutzungen, Erschließung, angrenzende Freiflächen) entworfen.
Eine digitale Dokumentation fasste alle Projekte zusammen und machte die Potenziale des Gebietes und seiner prozesshaften Entwicklung für alle Aktuere anschaulich.
Angela Mensing-de Jong, Gudrun Deppe und Louisa Scherer
.............................................................................................................................................................
GutenMorgenSpäthsfelde
Felix Degenhardt, Gabriel Morlang

© Degenhardt/Morlang

© Degenhardt/Morlang

© Degenhardt/Morlang

© Degenhardt/Morlang

© Degenhardt/Morlang

© Degenhardt/Morlang

© Degenhardt/Morlang

© Degenhardt/Morlang

© Degenhardt/Morlang
Biodiverses Kanaleck
Christopher Ehlers, Franziska Striedinger

© Ehlers/Striedinger

© Ehlers/Striedinger

© Ehlers/Striedinger

© Ehlers/Striedinger

© Ehlers/Striedinger

© Ehlers/Striedinger

© Ehlers/Striedinger

© Ehlers/Striedinger

© Ehlers/Striedinger
Green Connection
Philipp Leder, Jonathan Theis

© Leder/Theis

© Leder/Theis

© Leder/Theis

© Leder/Theis

© Leder/Theis

© Leder/Theis

© Leder/Theis

© Leder/Theis

© Leder/Theis
Sprießende Stadt
Qiuna Li

© Qiuna Li

© Qiuna Li

© Qiuna Li

© Qiuna Li

© Qiuna Li

© Qiuna Li

© Qiuna Li

© Qiuna Li

© Qiuna Li
Grün Näher Bringen
Caroline Bruder, Nane Kersten

© Bruder/Kersten

© Bruder/Kersten

© Bruder/Kersten

© Bruder/Kersten

© Bruder/Kersten

© Bruder/Kersten

© Bruder/Kersten

© Bruder/Kersten

© Bruder/Kersten